
產品概述
粉塵濃度檢測儀采用準確可靠的交流靜電測量技術,通過感應空氣中粉塵粒子所攜帶的電荷,可實現粉塵濃度實時在線監控。
粉塵濃度檢測儀為一體式設計,集粉塵傳感器、變動器、及數字顯示屏
和聲光報警等為一體;操作簡單,安裝方便。實時在線對粉塵環境狀況進行監測,及時進行報警使環境粉塵含量控制在標準范圍內,規避粉塵帶來的危害。
粉塵濃度檢測儀適用于生產車間、隧道、施工工地、倉庫、堆料場、皮帶及風力送料等各種產生粉塵的作業環境。

工作原理
AIFLI-DFM/TZ 粉塵濃度檢測儀采用準確可靠的交流靜電測量技術。當空氣中的荷電粒子經過傳感器時,粉塵粒子所攜帶的微弱電荷被傳感器采集并傳送至處理器,處理器把信號處理結果轉換成與粉塵含量成線性關系的輸出值。
1、 粉塵濃度在線監測
產品實時在線檢測粉塵濃度,可連續監測工作場所粉塵濃度情況。
2、 粉塵濃度值數據直讀,可設置報警值,實現現場聲光報警
(1)產品自帶顯示屏,可實現粉塵濃度值數據直讀,方便使用者在檢測現場隨時查看
(2)可自行設置粉塵濃度報警值,儀器帶有報警功能,在粉塵濃度達到報警值時,會啟動聲光報警。
3、 儀器有模擬量、RS485 輸出
儀器有模擬量、RS485 輸出,可選擇接入 PLC\DCS 進行處理控制
粉塵儀 特性優點
1 、可測各類粉塵
測量介質范圍寬泛,可測量任何介質的粉塵粒子
2、 濃度測量范圍可定制
產品量程范圍大,可定制;可應用與各類生產車間;儲煤場、工地等各類作業環
境
3、 儀器免維護
傳感器為無源被動型,無電子電路,傳感器防止粉塵沾染、堆積,免維護。
4、 靈敏度高,可靠性高。
5、 、 粉塵儀為一體式設計,安裝簡單
產品一體式設計,集粉塵傳感器、數字顯示屏等為一體,可直接在檢測現場看到濃度值, 無需再外接控制器。
粉塵儀操作更加便捷,安裝更加簡單
應用環境:
1、生產車間;噴涂車間、金屬品生產車間、食品加工車間等所有產生粉塵的車間
2、皮帶及風力送料、隧道、施工工地等相對開放性空間
3、倉庫、堆料場、儲煤場等倉儲性空間
應用行業:
金屬制造、建材加工、谷物加工、糧食倉儲、水泥制造、石油化工化工品制造等工業行業
一、安裝位置
安裝位置一般選在容易產生揚塵的地方
二、安裝方式:
粉塵儀采用壁掛式安裝、吊裝及支架式安裝。
三、安裝注意
1、傳感器進氣口及出氣口不能被遮擋,否則會影響測量結果,但不會造成損壞。
2、外引電纜應就近固定,以防來回擺動,造成傳輸導線的機械損傷。
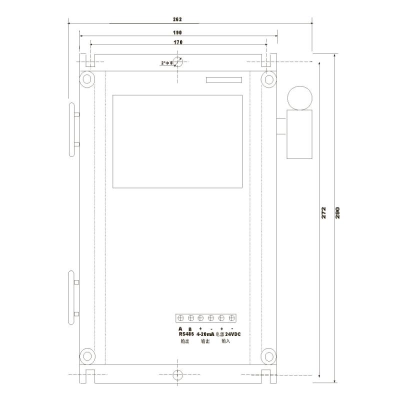
儀器組成及圖解
一、產品外觀及組成


儀器組成:
1.儀器外殼體 作用:保護儀器內部工作單元
2.接線口 作用:連接線路到內部接線端子,即可啟動儀器進行工作。
3.二次表 作用:實時顯示粉塵濃度值,可設功能報警值。
4.透明顯示窗 作用:方便觀察顯示儀上顯示的粉塵濃度值。
5.傳感器單元 作用:粉塵通過傳感器單元時,傳感器會捕捉、感應粉塵粒子所攜帶電荷。
6.過濾盒 作用:防止儀器內部沾染粉塵。
7.報警器 作用:粉塵濃度超標時,啟動聲光報警。
儀器操作及工作流程
一、在將儀器安裝固定好之后,打開儀器,可看到接線端子,將電源與儀器電源端子連接(注意區分正負極)
二、將 4-20mA 輸出端子接線, 與其他信號處理系統連接,方便信號的后續處理

儀器安裝
三、啟動電源,儀器即進入工作狀態
(一)空氣會通過傳感器,頻率為每 3S 一次
(二)需檢測空氣通過傳感器部分,傳感器會感應并采集氣體中粉塵粒子所攜帶的電荷,并傳送至處理器
(三)處理器把信號處理結果轉換成與粉塵含量成線性關系的輸出值,并顯示數值在顯示屏上。
糧食倉庫粉塵濃度檢測儀 大理石打磨車間粉塵監測儀 粉塵濃度檢測儀 粉塵檢測儀 粉塵檢測儀 粉塵檢測儀什么原理的好 粉塵檢測儀屬于什么用品 粉塵檢測儀怎么使用 pm2 5粉塵檢測儀 粉塵檢測儀器 直讀式粉塵檢測儀 粉塵檢測儀廠家 粉塵檢測儀型號 粉塵檢測儀生產廠家 粉塵檢測儀 北斗星 粉塵檢測儀品牌 粉塵檢測儀使用說明書 粉塵檢測儀器價格 粉塵檢測儀價格 激光粉塵檢測儀 手持式粉塵檢測儀 dustmate粉塵檢測儀 工業粉塵檢測儀 空氣粉塵檢測儀 網格化粉塵檢測儀 粉塵檢測儀上海 便攜式粉塵檢測儀型號 粉塵